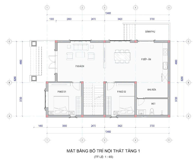
Chia sẻ file Revit nhà anh Toàn phong cách đơn giản với mái Nhật 2 tầng, diện tích xây dựng 8,5x13,5m
💖 LINK DOWN file revit: ĐÂY
(mọi thắc mắc về pass giải nén inbox fanpage thuvienthietke360 để nhận được giải đáp nhanh nhất)=> xem thêm các mẫu nhà phố tương tự tại đây: REVIT
Cre Tường Rcad





