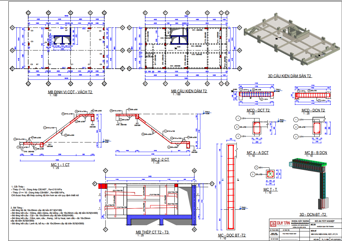
💖 Chia sẻ một bộ đồ án tốt nghiêp revit kết cấu khách sạn 12 tầng với đầy đủ file cad, revit, biện pháp thi công, file excel tính toán tải trọng, báo cáo địa chất, thống kê thép, thuyết minh chi tiết... (xem hình ảnh demo ở dưới)
💖 LINK DOWN file revit: ĐÂY
(mọi thắc mắc về pass giải nén inbox fanpage thuvienthietke360 để nhận được giải đáp nhanh nhất)=> xem thêm các mẫu nhà phố tương tự tại đây: REVIT
Cre: Lê Văn Tài






